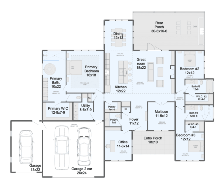
2667 Sqft
Could you imagine living in a beautiful mountainous area, waking up due to birds’ singing, starting your perfect morning from breathing fresh air and meditating in the forest?
We can materialize your thoughts, build your perfect house in the lap of nature.
This area was distinguished from the rest and everything was done that extra noise does not interfere with your comfort.
Trees play an important role in improving air quality that’s why in this area you can breathe deeply.
Spending time in the forest and looking at trees can help to improve your mental and emotional health
Give us a call to schedule a tour and make this home yours!
GOOD Based on 29 reviews Posted on Donald NobleTrustindex verifies that the original source of the review is Google. At Noble Pest Solutions, we’ve had the pleasure of working closely with Big Hills Construction on several custom home builds—and we can confidently say they are one of the most professional, detail-oriented builders we’ve partnered with. Their team is organized, communicative, and always puts the homeowner’s best interest first. From foundation to final walkthrough, Big Hills Construction takes pride in every step of the process, and it shows in the quality of their homes. As a termite and pest prevention provider, we especially appreciate how proactive they are in ensuring their builds are protected from the ground up. They’re serious about long-term protection and always go the extra mile to make sure our treatments are seamlessly integrated. Big Hills Construction’s dedication to excellence makes our job easier and more effective. Highly recommend them to anyone looking for a trusted, top-tier custom home builder!Posted on Angelina SysaTrustindex verifies that the original source of the review is Google. Just moved into Victoria Hills a few months back. The community is great, lots of great neighbors, awesome location. I love taking walks outside to enjoy the beautiful nature and views of the mountains around. There’s a peaceful creek running throughout- great for nature lovers but also people that want to be minutes from shopping stores/restaurants We are excited for the playground and community area that is coming up soon. Would recommend to anyone that is looking for a home with a great community.Posted on Lucas AndersTrustindex verifies that the original source of the review is Google. I have had the opportunity to work with Big Hills from the distribution side and they have been a great customer to work with. They continuously pick out quality products for their customers.